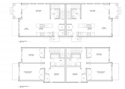
400 Block of Braid Street - Schoenne Homes... Beautiful Homes 5 side by side duplex buildings with each building including one front facing unit and an identical rear facing unit