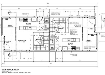
444 and 450 Hansen Street Side by side duplex buildings with each building including one front facing unit and an identical rear facing unit