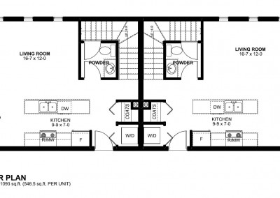
458 and 466 Caribou Street Side by side duplex buildings with each building including one front facing unit and an identical rear facing unit