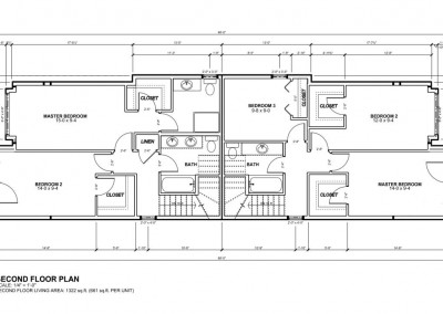
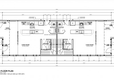
707-717 Churchill Avenue Side by side duplex buildings with each building including one front facing unit and an identical rear facing unit